共立商事 > (店舗(賃貸))地域から探す > 小平市 > しのざきビル > 物件詳細

しのざきビル

物件紹介

駅近3分の好立地♪学園一番街沿い・路面店♪業種応相談♪

賃料/坪単価
55万円 /
0.88万円
坪数/面積
62.15坪 /
205.46㎡
所在階
地下1-2階
管理費・共益費
-
敷金
0ヶ月
礼金
1ヶ月
  • お問い合わせ
  • 検討リストに追加
POINT
花小金井 小平 西東京周辺エリアに密着した不動産会社で おかげさまで設立から43年を迎えようとしています。地元ならではの情報量 取扱い物件をお客様にご提案させていただきます。地域密着の当社までお気軽にご連絡下さい。あなたに合う素敵なお部屋がきっと見つかります。

PHOTO GALLERY

印刷する
  • 【外観】 | しのざきビル

    【外観】

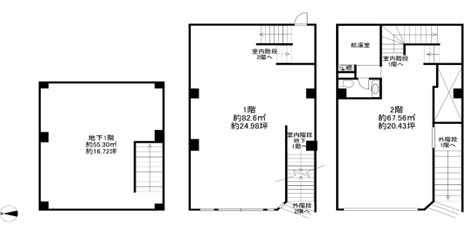
  • 【間取り】 | しのざきビル

    【間取り】

  • 【外観】 | しのざきビル
  • 【内装】 | しのざきビル | 2F
  • 【内装】 | しのざきビル | 更衣室
  • 【内装】 | しのざきビル | 2F
  • 【内装】 | しのざきビル | 1F
  • 【内装】 | しのざきビル | 1F
  • 【内装】 | しのざきビル | B1F
  • 【内装】 | しのざきビル | B1F
  • 【内装】 | しのざきビル | B1F
  • 【ロビー】 | しのざきビル
  • 【トイレ】 | しのざきビル
  • 【内装】 | しのざきビル

※写真や図と実際の現状とが異なる場合は現状を優先させていただきます。

設備条件

  • 飲食不可
  • 視認性良好
  • 残置物有
  • 好立地
  • 商店街
  • 路面店
  • 美容室向け
  • 物販向け
  • 公営水道
  • 公共下水
  • 電気有
  • エアコン

お問い合わせ

有限会社共立商事

042-466-5518

  • 〒187-0002
  • 東京都小平市花小金井1丁目12番2号 

10:00~18:00  定休日:水曜・第2、3火曜

物件概要

【店舗】 物件番号:95322315 情報更新日:2026年03月06日 次回更新予定日:2026年03月20日
所在地 東京都小平市学園東町1丁目
交通
坪数(面積) 62.15坪(205.46㎡)
賃料/坪単価 55万円/0.88万円 管理費・共益費 -
敷金/礼金/保証金 0ヶ月/1ヶ月/- 償却/敷引 -/-
更新料 1ヶ月(新賃料) 権利金/雑費 -/-
造作譲渡金 - 駐車場/月額料金 無/-
保険加入/料金 有/18,500円 保険名/保険期間 宅建ファミリー共済/2年
保証人代行義務/利用料 -/ 初回保証料:賃料等合計の100% 更新時:10%/年 又は0.8% 保証会社 日本セーフティー
保証会社詳細 向き
築年月(築年数) 1990年 11月 (築35年) 契約期間 3年
種別/構造 店舗/鉄筋コンクリート 用途地域 -
部屋/所在階/階建 -/地下1-2階/2階建 地下1階 総戸数 -
現況/引渡時期 空家/相談 取引態様 一般媒介
物件番号 95322315 取引条件の有効期限 2026年03月20日
設備条件
  • 飲食不可
  • 視認性良好
  • 残置物有
  • 好立地
  • 商店街
  • 路面店
  • 美容室向け
  • 物販向け
  • 公営水道
  • 公共下水
  • 電気有
  • エアコン
備考 〇現況渡し(棚等の備品あり) 
〇飲食業不可
〇火災保険加入要 (業種により異なります)
〇保証会社要加入要 初回:賃料等合計の100% 
 更新:10%/年または0.8%/月(最低保証料有)
 振替手数料:300円+消費税/月
〇6ヵ月未満での解約の場合は違約金として賃料の1ヵ月分がかかります。花小金井、小平、西東京周辺エリアに密着した不動産会社で、おかげさまで設立から43年を迎えようとしています。地元ならではの情報量・取扱い物件をお客様にご提案させていただきます。地域密着の当社までお気軽にご連絡下さい。あなたに合う素敵なお部屋がきっと見つかります。
取扱会社
  • 有限会社共立商事
  • 東京都小平市花小金井1丁目12番2号 
  • TEL:042-466-5518
  • 東京都知事 (12) 第35128号
  • 公益社団法人 全国宅地建物取引業協会連合会
QRコード

QRコード

このQRコードを読み取ることで、スマホでも物件情報を確認できます。

地図

※地図上に表示される物件の位置は付近住所に所在することを表すものであり、実際の物件所在地とは異なる場合がございます。

物件お問い合わせ

必要項目の入力

0/0
必須項目完了

確認画面へ
お進み下さい

0/0
必須項目完了

確認画面へ
お進み下さい

お名前

必須

メールアドレス

必須

電話番号

任意

要望

任意

内容

任意

現在こちらのお問い合わせフォームは使用しておりません。
トップページの会社概要内に記載のメールアドレス宛に送信をお願い致します。

利用規約及びプライバシーポリシーを必ずお読みください。左記内容に同意いただいた場合は、確認画面へお進み下さい。

未入力項目があります

この物件を見た人はこちらの物件も見ています

駿河屋貸店舗

駿河屋貸店舗の画像

賃料
25.3万円
種別
住宅付店舗戸建
住所
東京都小平市花小金井1丁目
交通
花小金井駅
徒歩7分

花小金井プリンスマンション

花小金井プリンスマンションの画像

賃料
5.5万円
種別
店舗一部
住所
東京都小平市花小金井1丁目
交通
花小金井駅
徒歩2分

お問い合わせ

有限会社共立商事

会社画像

042-466-5518

10:00~18:00  定休日:水曜・第2、3火曜

  • 〒187-0002
  • 東京都小平市花小金井1丁目12番2号 

物件リクエスト

トップへ戻る